ПРОЕКТНАЯ ДЕКЛАРАЦИЯ
на строительство объекта «Возведение многоквартирного жилого дома в микрорайоне №16 в г. Гомеле».
1. ИНФОРМАЦИЯ О ЗАСТРОЙЩИКЕ:
Государственное предприятие «Гомельское областное УКС» зарегистрировано решением Гомельского областного исполнительного комитета от 04.11.2003г. № 710, УНП 400074310, расположено по адресу:
г. Гомель, ул. Билецкого, 7.
Режим работы:
начало рабочего дня 8-30;
окончание работы 17-30;
перерыв на обед с 13-00 до 14-00,
выходные – суббота, воскресенье, государственные праздники и праздничные дни.
В течение трех последних лет ГП «Гомельское областное УКС» осуществляло функции заказчика по следующим объектам:
- Реконструкция братского захоронения на месте сожженной деревни Олы в Светлогорском районе Гомельской области.
- Средняя школа в микрорайоне № 96.
- Многоквартирный жилой дом на пересечении улиц Бородина – Восточный обход.
- Многоквартирный жилой дом по улице Станкостроительный проезд в г.Гомеле.
- Многоквартирный жилой дом (позиция № 77) в микрорайоне № 96 г. Гомеля.
- Многоквартирный жилой дом (позиция № 57) в микрорайоне № 96 г. Гомеля.
- Многоквартирный жилой по проспекту Космонавтов (в районе жилого дома № 84) г. Гомеля.
- Многоквартирный жилой дом в районе улиц Кирова – Федосеенко в городе Гомеле.
- Многоквартирные жилые дома (поз. №№24,24а,24б,24в,24г по генплану) в микрорайоне №59 в г.Гомеле" (2-я очередь строительства).
- Многоквартирные жилые дома (поз. №№24,24а,24б,24в,24г по генплану) в микрорайоне №59 в г.Гомеле" (1-я очередь строительства).
- Пятиэтажный жилой дом позиция 2 в микрорайоне "Северный" в г. Ветка.
- Многоквартирный жилой дом в г. Добруше.
- Многоквартирные жилые дома №1 и №2 в микрорайоне №16 г. Гомеля в районе улиц Кожара-Мазурова (р-н существующей автостоянки).
- Проект застройки в квартале улиц Советская – Федюнинского – Лепешинского в г.Гомеле. РПК №2. Возведение многоквартирного жилого дома № 4, 4а по генплану.
- Проект застройки в квартале улиц Советская – Федюнинского – Лепешинского в г.Гомеле. РПК №2. Возведение многоквартирного жилого дома № 4б по генплану.
2.ИНФОРМАЦИЯ О ПРОЕКТЕ СТРОИТЕЛЬСТВА:
Цели строительства: квартиры строятся для личных нужд.
Этапы и сроки реализации строительства:
Нормативный срок строительства в соответствии с государственной экспертизой: 8,5 месяцев.
Срок строительства (перенос, приостановка, разделение на этапы) изменяется в порядке, установленном законодательством.
Начало строительства: 17.07.2025 г.
Характеристика объекта строительства:
Генпроектировщик: Открытое акционерное общество по комплексному проектированию объектов жилищно-гражданского назначения «Институт Гомельгражданпроект».
Подрядная организация: Открытое акционерное общество «Гомельский домостроительный комбинат».
Участок строительства расположен в Центральном районе города Гомеля, в сложившейся застройке микрорайона №16.
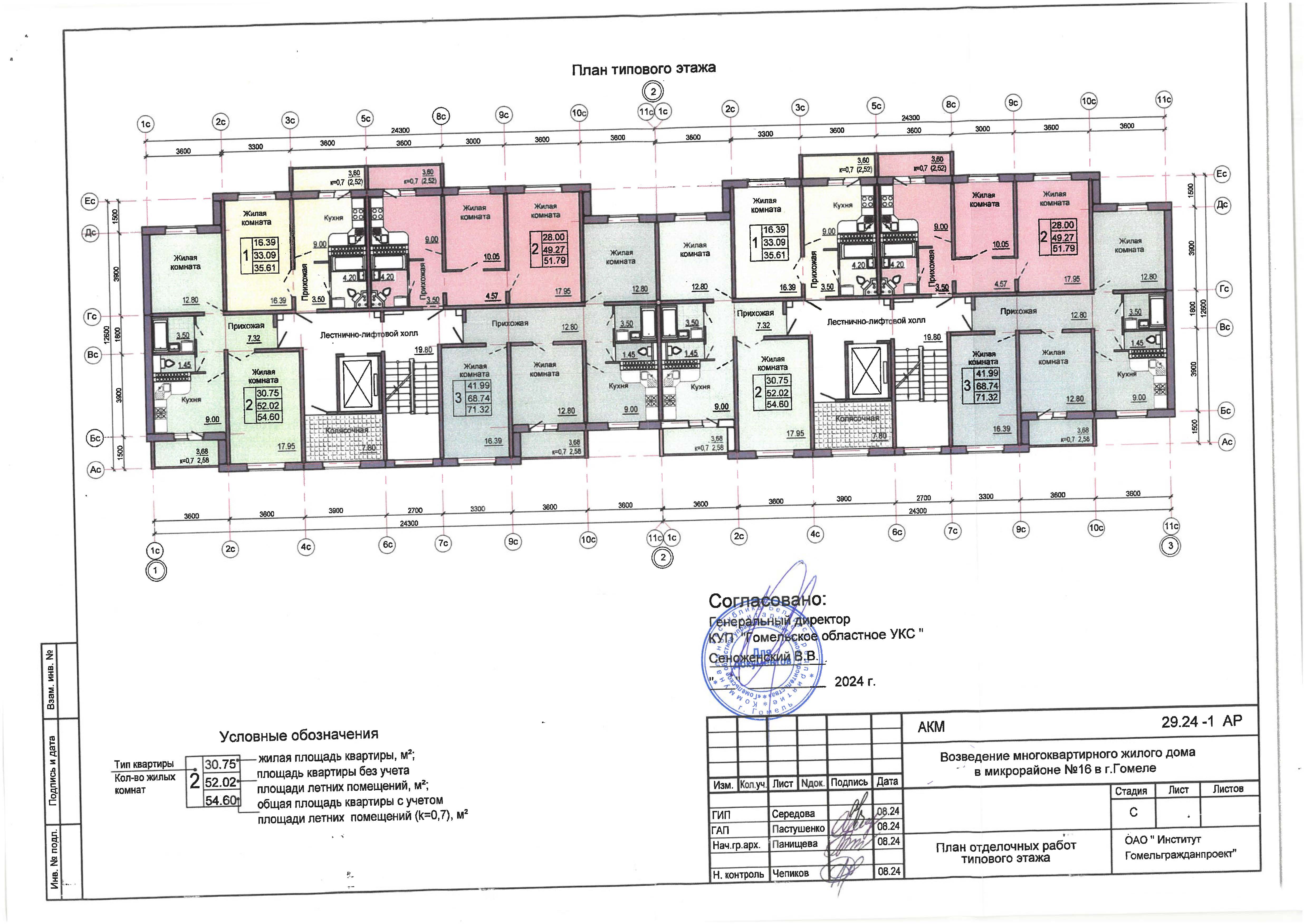
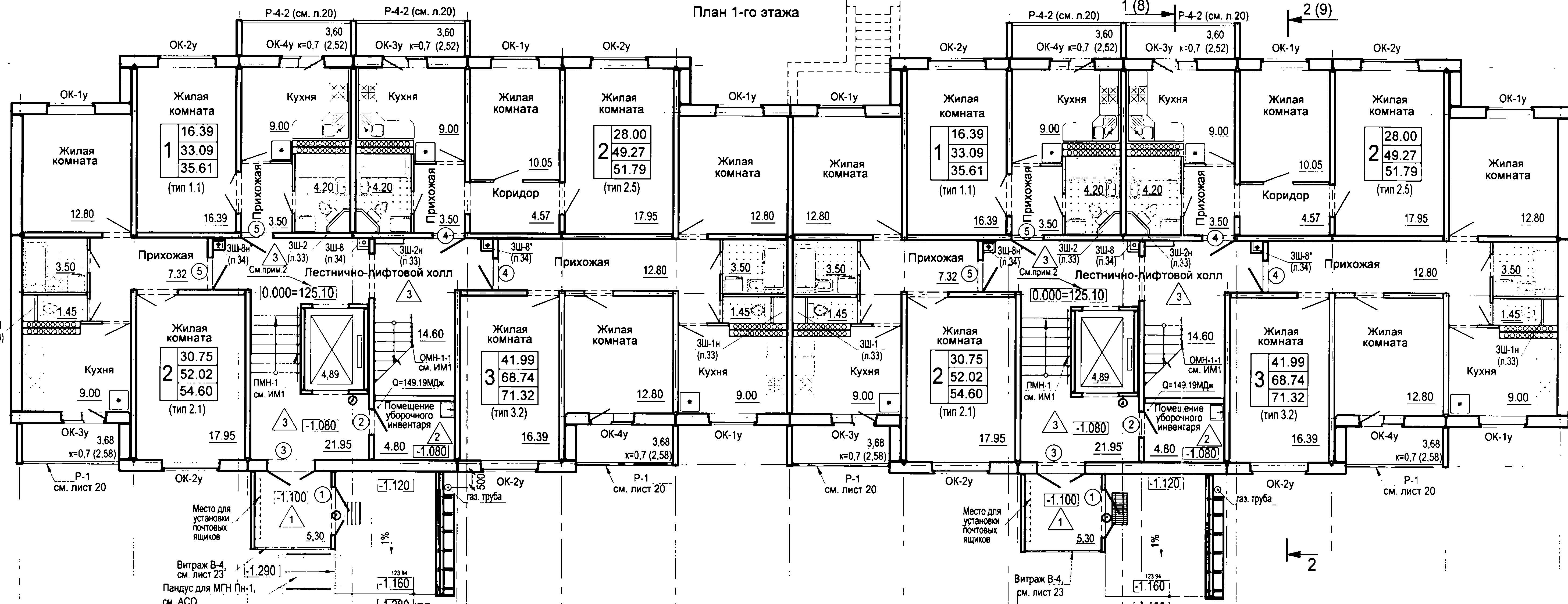
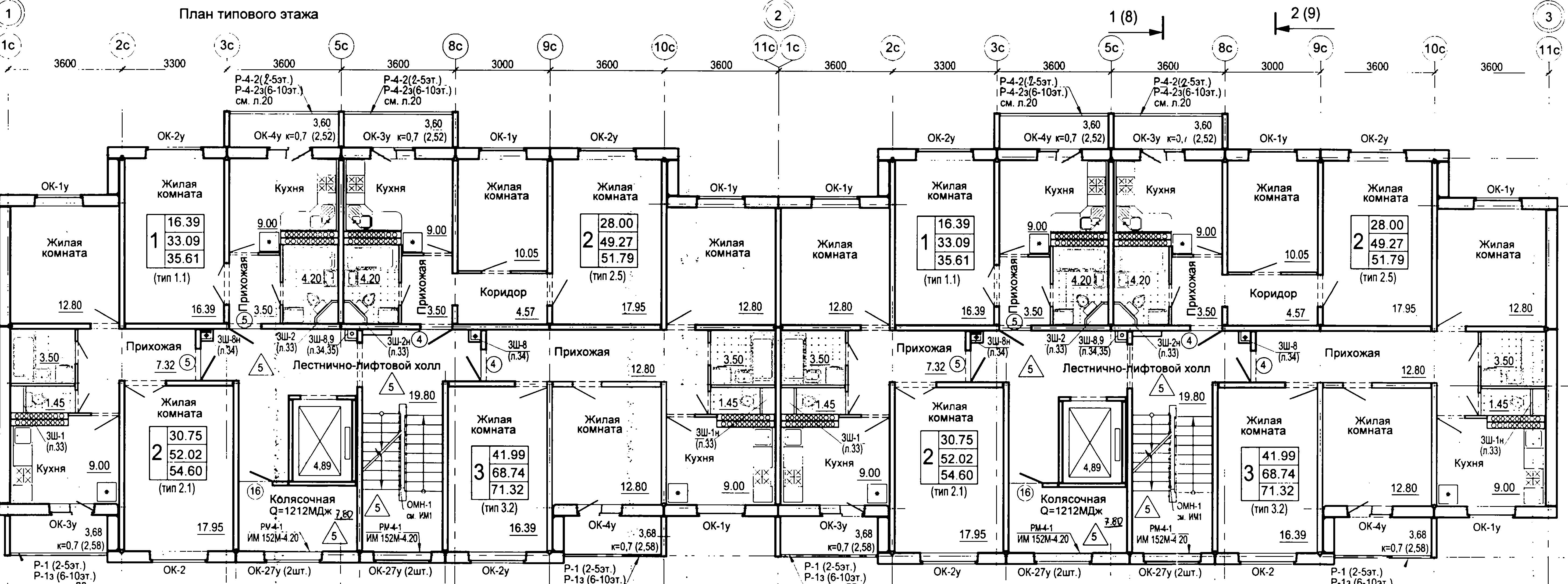
Проектом предусмотрено возведение 80-квартирного 10-этажного 2-секционного индивидуального жилого дома, разработаного на основе архитектурно-планировочных решений и конструктивных индустриальных изделий серии 152М.
Конструктивная схема здания – крупнопанельный дом. Здание имеет прямоугольную конфигурацию. Запроектировано 80 квартир по 4 квартиры на этаже каждой секции с набором квартир 2-1-2-3: 1-комнатных – 20, 2-комнатных – 40, 3-комнатных – 20. Высота этажа – 2,8 м.
Внутренние стены – сборные железобетонные панели, перегородки – сборные железобетонные панели, плиты перекрытия и покрытия – сборные железобетонные сплошные плоские плиты. Лестничные марши и площадки – сборные железобетонные. Шахты лифтов – сборные железобетонные плоские панели.
Окраска фасадов здания, в том числе входной группы, по наружной поверхности панелей заводской готовности выполняется акриловой фасадной краской по огрунтованной поверхности. В отделке входных групп частично применяется облицовка фиброцементными плитами с последующей окраской.
Каждая секция дома оборудована грузопассажирским лифтом грузоподъёмностью 630 кг, без машинного помещения, с проходной кабиной, с первой посадочной остановкой на уровне входа в здание.
Жилой дом разработан с техническим подпольем, без технического чердака, с совмещенной кровлей. Техподполье предназначено для прокладки инженерных коммуникаций и размещения помещений с инженерным оборудованием. В техническом подполье расположены индивидуальный тепловой пункт, водомерный узел, электрощитовая и помещение видеонаблюдения. Крыша - плоская, совмещенная кровля принята из 2-х слоев кровельного материала. Водосток – внутренний, организованный.
На первом этаже в каждой секции проектом предусмотрены кладовые уборочного инвентаря. Колясочные для хранения детских ии инвалидных колясок расположены на 2-10 этажах в каждой секции.
Дом запроектирован без мусоропровода.
Возле каждого входа в подъезд жилого дома устанавливается скамейка, урна и стойки для велопарковки.
Внутреннее зонирование квартир обеспечивает достаточный комфорт проживания и компактность расположения инженерных сантехнических коммуникаций, санузлов (совмещенных санузлов) и кухонь, жилые комнаты не граничат с лестнично-лифтовым узлом. Все жилые комнаты раздельные. Во всех квартирах предусмотрены летние помещения (лоджии) с расположением их у кухонь. Для элементов остекления лоджий, предназначенных для установки выше 5 этажа, применено закаленное стекло.
|
Наименование |
Характеристика |
|
Окна, балконные двери и лоджии |
Окна – ПВХ-профиль с двухкамерным стеклопакетом. Остекление лоджий – из ПВХ-профиля с одинарным стеклопакетом. |
|
Внутренняя отделка мест общего пользования
|
Потолки – окраска фактурной краской (лестнично-лифтовые узлы), потолки тамбуров главных входов подшиваются фиброцементными плитами. Стены – покраска фактурной акриловой краской (лестнично-лифтовые узлы), акриловая краска (помещения уборочного инвентаря, колясочные, электрощитовая). В отделке полов мест общего пользования применяется керамогранитная плитка, в помещениях уборочного инвентаря и колясочных – керамическая плитка для полов. |
|
Внутренняя отделка в квартирах (по заявлению дольщика)
|
Потолки жилых комнат, прихожих, коридоров, кухонь – покраска акриловой краской для потолков, потолки ванной комнаты и санузла – покраска влагостойкой акриловой краской для потолков. Стены жилых комнат, прихожих, коридоров – оклейка обоями, стены кухонь – покраска акриловой влагостойкой краской, стены ванной и туалетной комнат – покраска акриловой влагостойкой краской. Полы в жилых комнатах, прихожих, коридорах и кухнях – ламинированное напольное покрытие с ПВХ плинтусом, полы в ванной и туалетной комнатах – керамическая плитка. Оконные откосы – покраска акриловой влагостойкой краской. Двери межкомнатные деревянные заводской готовности. |
|
Двери |
Двери наружные и тамбурные в жилой дом – алюминиевые, остекленные ударостойким стеклом. Двери входов в квартиры – металлические. Внутренние двери в квартирах – деревянные щитовой конструкции. |
|
Иное оборудование, установленное в квартире |
Приборы учета расхода тепла, счетчики холодной и горячей воды, газа, радиаторы, унитазы, автономные дымовые пожарные извещатели, газовая плита ПГ-4. |
|
Иное оборудование |
Приборы учета электрической энергии на каждом жилом этаже в поэтажных распределительных устройствах. Видеонаблюдение. |
Сведения о количестве объектов долевого строительства, предлагаемых для заключения договоров – 16 (№№ 1 – 8 и 41 - 48).
1-комнатных –4 шт., общей площадью 35,61кв.м.;
2-х комнатных – 8 шт., общей площадью от 51,79 до 54,60кв.м.;
3-х комнатных – 4 шт., общей площадью 71,32кв.м.
Строительство осуществляется в порядке долевого участия, договоры с дольщиками заключаются в соответствии с требованиями Указа Президента Республики Беларусь от 10.12.2018 года № 473 «О долевом строительстве».
Предусмотрены затраты застройщика, не включенные в сводный сметный расчет с учетом прибыли застройщика, компенсации бюджету города Гомеля стоимости жилых помещений, предназначенных для переселения граждан из жилых домов подлежащих сносу в связи с предоставлением земельных участков под жилищное строительство (Постановление Совета Министров РБ от 30.03.2007г. № 407) и возмещения затрат на строительство, в том числе проектирование, объектов распределительной инженерной и транспортной инфраструктуры (Постановление Совета Министров РБ от 01.04.2014г.№ 298).
Квартиры №№ 13, 15, 16 безвозмездно передаются в коммунальную собственность города Гомеля для переселения граждан их жилых домов, подлежащих сносу в связи с предоставлением земельных участков под жилищное строительство.
Информация о стоимости строительства:
Для граждан, состоящих на учете нуждающихся в улучшении жилищных условий стоимость строительства 1 кв. м. составляет:
- без выполнения внутренних отделочных работ – 2 377,53 руб.,
- с выполнением внутренних отделочных работ – 2 651,25 руб.
Застройщик вправе изменить стоимость в случаях изменения прогнозных индексов стоимости строительно-монтажных работ в нормативный период строительства, изменения законодательства об уплате косвенных налогов в период строительства.
По объекту имеются следующие согласования и заключения:
- экспертное заключение ДРУП «Госстройэкспертиза по Гомельской области» от 07.07.2025г. №453-40/25;
- решение Гомельского горисполкома от 09.07.2025 № 512§1 об изъятии и предоставлении земельного участка в г.Гомеле;
- решение Гомельского горисполкома от 10.07.2025 № 515§1 о разрешении строительства объекта;
- выданное инспекцией Департамента контроля и надзора за строительством по Гомельской области извещение о получении уведомления и регистрации объекта от 05.08.2025 №5-522Ж-106/25.
- договор строительного подряда от 17.07.2025 № 2140/25.
3. ПОРЯДОК ПРИЕМА ЗАЯВЛЕНИЙ НА УЧАСТИЕ В ДОЛЕВОМ СТРОИТЕЛЬСТВЕ (далее – заявление):
Прием заявлений от граждан и юридических лиц начинается 16 октября 2025 в кабинете жилищного строительства ГП «Гомельское областное УКС» по адресу: г. Гомель, ул. Билецкого, 7, ежедневно с 8:30 до 17:30 (обед с 13:00 до 14:00) в порядке живой очереди.
Оплата первого взноса осуществляется в размере 80% стоимости договора.
Для подачи заявления и заключения договора необходимо личное присутствие гражданина с наличием документа удостоверяющего личность (паспорт, идентификационная карта, вид на жительство в Республике Беларусь) или его представителя с наличием доверенности и документа удостоверяющего личность, справка о состоянии на учете нуждающихся в улучшении жилищных условий в г. Гомеле (выданную не позднее 30 календарных дней (включительно) на момент её предоставления в УКС, со сверкой учетных данных).
Порядок приёма заявлений на жилые помещения - в течение 30 календарных дней (включительно) со дня опубликования проектной декларации принимается одно заявление от физического на одно жилое помещение, в т.ч. в случае подачи заявления по доверенности.
Приём заявлений осуществляется до момента набора необходимого количества заявлений, соответствующих количеству продекларированных помещений.
Предварительная запись и бронирование жилых помещений не осуществляется, электронные заявления не регистрируются.
Заявления подлежат регистрации в порядке очередности их подачи.
Застройщик не формирует очередь, не ведёт учет и не влияет на формирование очереди потенциальных дольщиков.
Заявление считается аннулированным в случае не явки лица, подавшего заявление на участие в долевом строительстве, для подписания договора в течение 3-х рабочих дней с момента получения сообщения о готовности договора (информация о готовности договора направляется посредством СМС – оповещения по номеру, указанному в заявлении, либо посредством телефонной связи).
Приём заявлений на квартиры, освободившиеся в ходе строительства, осуществляется по живой очереди только после того, как соответствующая информация будет размещена на сайте ГП «Гомельское областное УКС» obluksgomel.by.
Не допускается переуступка прав и обязанностей, вытекающих из сути договора создания объекта долевого строительства по объекту «Возведение многоквартирного жилого дома в микрорайоне №16 в г. Гомеле» третьим лицам кроме: детям, родителям, супругу (супруге), родным братьям и сёстрам.
Более подробную информацию по вышеуказанному объекту можно получить по телефонам 29 52 50, +375 44 721 21 00 в рабочее время.










