ПРОЕКТНАЯ ДЕКЛАРАЦИЯ
на строительство объекта «Проект застройки 2-ой очереди микрорайона № 16 в г. Гомеле. Возведение многоквартирного жилого дома № 96 по генплану».
1. ИНФОРМАЦИЯ О ЗАСТРОЙЩИКЕ:
Наименование: Государственное предприятие «Гомельское областное УКС» зарегистрировано решением Гомельского областного исполнительного комитета от 04.11.2003г. № 710, УНП 400074310
Место нахождения: г. Гомель, ул. Билецкого, 7.
Режим работы:
начало рабочего дня 8:30;
окончание работы 17:30;
перерыв на обед с 13:00 до 14:00,
выходные – суббота, воскресенье, государственные праздники и праздничные дни.
В течение трех последних лет ГП «Гомельское областное УКС» осуществляло функции заказчика по следующим объектам:
- Многоквартирный жилой дом по улице Станкостроительный проезд в г.Гомеле (апрель 2022 г. – ноябрь 2022 г.)
- Многоквартирный жилой дом (позиция № 77) в микрорайоне № 96 г. Гомеля (июль 2022 г. – декабрь 2022г.)
- Многоквартирный жилой дом (позиция № 57) в микрорайоне № 96 г. Гомеля (апрель 2022г. – июнь 2022г.)
- Многоквартирный жилой по проспекту Космонавтов (в районе жилого дома № 84) г. Гомеля (июль 2022г.- июнь 2023 г.)
- Многоквартирный жилой дом в районе улиц Кирова – Федосеенко в городе Гомеле (июнь 2022г. – июнь 2023 г.)
- Многоквартирные жилые дома (поз. №№24,24а,24б,24в,24г по генплану) в микрорайоне №59 в г.Гомеле" (2-я очередь строительства) (март 2023г. – июль 2024 г.)
- Многоквартирные жилые дома (поз. №№24,24а,24б,24в,24г по генплану) в микрорайоне №59 в г.Гомеле" (1-я очередь строительства) (март 2023 г. – апрель 2024 г.)
- Пятиэтажный жилой дом позиция 2 в микрорайоне "Северный" в г. Ветка (июль 2022 г. – май 2024 г.)
- Многоквартирный жилой дом в г. Добруше (февраль 2023 г. – декабрь 2023 г.)
2.ИНФОРМАЦИЯ ОБ ОБЪЕКТЕ СТРОИТЕЛЬСТВА:
Цели строительства: квартиры строятся для личных, семейных и бытовых нужд.
Этапы и сроки реализации строительства: продолжительность строительства в соответствии с государственной экспертизой - 8,0 месяцев.
Срок строительства (перенос, приостановка, разделение на этапы) изменяется в порядке, установленном законодательством.
Начало строительства: 30.06.2025 г.
Характеристика объекта строительства:
Генпроектировщик: ОАО «Институт Гомельгражданпроект».
Подрядная организация: ОАО«Мозырский домостроительный комбинат».
Участок строительства расположен в 16-м микрорайоне г. Гомеля.
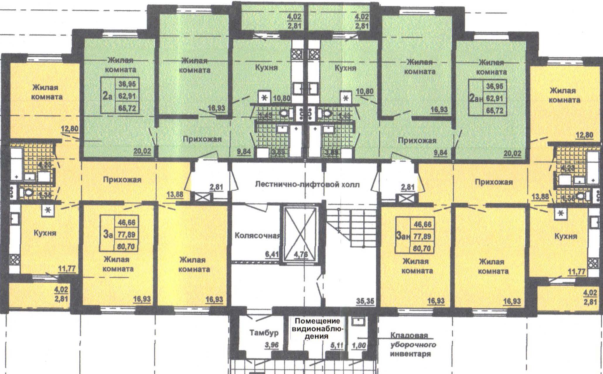
Проектом предусмотрено возведение 3-х секционного 3-х этажного бесчердачного жилого здания типовых потребительских качеств с техническим подпольем. Дом запроектирован без мусоропровода.
Здание крупнопанельное в конструкциях серии Моз90, бескаркасное, имеет конструктивную систему с поперечными несущими стенами, с опиранием перекрытий по 2-м и 3-м сторонам. Фундаменты предусмотрены свайными из забивных свай, объединенныхмонолитным железобетонным ростверком.
Наружные стены – сборные трехслойные железобетонные панели.
Внутренние стены, перегородки, внутренние стены – сборные железобетонные.
Перегородки - из сборных железобетонных панелей, из керамического кирпича, из блоков ячеистого бетона.
Перекрытия и покрытие – сборные железобетонные сплошные плиты.
Лестничные марши и площадки – сборные железобетонные.
Лифтовые шахты из плоских железобетонных панелей.
Кровля совмещенная, плоская, рулонная из двух слоев кровельного материала по железобетонным сплошным плитам покрытия.
Жилой дом состоит из 36 квартир, по 4 квартиры на этаже: двухкомнатных – 18, трёхкомнатных – 18.
Состав квартир на этаже – 3-2-2-3.
В основу планировки квартир положен принцип функциональногозонирования с разделением пространства на бытовую зону и зону спален. Санузлы в квартирах раздельные.
Во всех квартирах предусмотрены летние помещения (лоджии) с остеклением панорамного типа с открывающимися внутрь створками.
Пищеприготовление предусмотрено на электроплитах.
Здание оборудовано: системами централизованного отопления, холодного и горячего водоснабжения, видеонаблюдения, домофонной связи (аудио-домофоны), автономными пожарными извещателями.
|
Наименование |
Характеристика квартир |
|
Балконы и лоджии |
Остекление лоджий предусматривается с заполнением однокамерным стеклопакетом со створками, нижняя часть отекления неоткрывающаяся из безопасного многослойного стекла |
|
Окна, балконные двери |
Окна – ПВХ-профиль с двухкамерным стеклопакетом |
|
Наружная отделка стен |
Покраска панелей наружных стен здания водно-дисперсионной акриловой силикон-модифицированной фасадной краской. Отдельные участки стен фасадов декорируются выполнением штукатурки с созданием стрктурной поверхности и применением металлических ламелей с полимерным покрытием. Наружная отделка стен входных групп – декоративная штукатурка с имитацией кирпичной кладки. Ограждения входных групп и другие металлические элементы окрашиваются эмалью. Покрытие крылец – плитка бетонная тротуарная. |
|
Внутренняя отделка мест общего пользования
|
Помещения общего пользования: -декоративная штукатурка стен, декоративная мозаичная штукатурка стен, улучшенная акриловая фактурная покраска потолков и стен; выполнение по периметру помещений молдингов и плинтусов из керамогранитной плитки, устройство реечного металлического подвесного потолка в тамбурах входов и лифтовых холлах. В лифтовом холле устанавливается зеркало. Выполняется подсветка почтовых ящиков. Покрытие полов – керамогранитная плитка. Технические помещения: -отделка стен и перегородок – простая покраска акриловой краскрй, простая покраска масляной краской; -отделка потолков – простая покраска акриловой краской, простая клеевая покраска;- покрытие полов – керамогранитная плитка, стяжка из цементно-песчаного раствора, стяжка из цементно-песчаного раствора с покрытием обеспыливающим составом |
|
Внутренняя отделка в квартирах (по заявлению дольщика)
|
-отделка стен и перегородок: оклейка обоями (жилые комнаты, прихожие, внутриквартирные коридоры), оклейка влагостойкими обоями (кухни), улучшенная покраска влагостойкой акриловой краской (сан.узлы, ванные комнаты); -отделка потолков: улучшенная покраска акрилловой краской; - покрытие полов: ламинированные панели (жилые комнаты, прихожие, внутриквартиные коридоры, кухни); - керамическая плитка (ванные, сан.узлы). Установка межкомнатных дверей, ванны, умывальника, мойки, электроплиты. |
|
Двери |
Наружные входные в подъезд двери – алюминиевые полностью остекленные с однокамерным стеклопакетом. Входные двери в квартиры, двери входов в техподполье, ИТП, водомерный узел, электрощитовую – стальные глухие. |
|
Лифтовое оборудование |
Каждая секция оборудована лифтом грузоподъемностью 630 кг |
|
Оборудование |
Приборы учета тепла, приборы учета холодной и горячей воды. Унитаз. Радиаторы, полотенцесушители. |
|
Иное оборудование |
Приборы учета электрической энергии для каждой квартиры – в этажных щитках и встроенных помещениях |
Сведения о количестве жилых помещений, предлагаемых для заключения договоров:
- двухкомнатные – 18 шт., общей площадью от 65,09 кв. м. - до 65,72 кв.м;
- трёхкомнатные – 17 шт., общей площадью от 80,06 кв. м. - до 88,39 кв.м.
Квартира № 8 безвозмездно передаётся в коммунальную собственность города Гомеля для переселения граждан их жилых домов, подлежащих сносу в связи с предоставлением земельных участков под жилищное строительство.
Строительство осуществляется в порядке долевого участия на коммерческой основе, договоры с дольщиками заключаются в соответствии с требованиями Указа Президента Республики Беларусь от 10.12.2018 года № 473 «О долевом строительстве».
Информация о стоимости строительства жилых помещений:
- для граждан, состоящих на учете нуждающихся в улучшении жилищных условий стоимость строительства 1 кв. м. составляет:
- без выполнения внутренних отделочных работ – 3 084,35 руб.,
- с выполнением внутренних отделочных работ – 3 323,17 руб.
- для граждан, не состоящих на учете нуждающихся в улучшении жилищных условий стоимость строительства 1 кв. м. составляет:
- без выполнения внутренних отделочных работ – 3 366,81 руб.,
- с выполнением внутренних отделочных работ – 3 605,63 руб.
- для юридических лиц и индивидуальных предпринимателей:
- стоимость строительства 1 кв. м. с неограниченной прибылью застройщика составляет – 4 000,00 руб.
Застройщик вправе изменить стоимость в случаях изменения прогнозных индексов стоимости строительно-монтажных работ в нормативный период строительства, изменения законодательства об уплате косвенных налогов в период строительства.
Расчет цены объекта долевого строительства на дату заключения договора и на дату ввода в эксплуатацию производятся по проектной площади.
Застройщик включает сумму индексации (пересчета) в цену договора создания объекта долевого строительства, заключаемого с новым дольщиком, вступившим в долевое строительство взамен выбывшего дольщика, которому были возвращены денежные средства с индексацией.
По объекту имеются следующие согласования и заключения:
- экспертное заключение ДРУП «Госстройэкспертиза по Гомельской области» от 20 марта 2025 г. №93-15/25 (экспертное заключение ДРУП «Госстройэкспертиза по Гомельской области» от 13 ноября 2025 г. №827-15/25 в дополнение);
- решение Гомельского горисполкома от 20.05.2025 № 366§9 о предоставлении земельных участков в г.Гомеле, свидетельство (удостоверение) о государственной регистрации земельного участка №300/1823-475 от 06 июня 2025 года;
- решение Гомельского горисполкома от 20.05.2025 № 367§1 о разрешении строительства объекта;
- выданное инспекцией Департамента контроля и надзора за строительством по Гомельской области извещение о получении уведомления и регистрации объекта строительства от 27.06.2025 №5-522Ж-084/25;
- договор строительного подряда от 16.06.2025 № 05/14-2025.
3. ПОРЯДОК ПРИЕМА ЗАЯВЛЕНИЙ НА УЧАСТИЕ В ДОЛЕВОМ СТРОИТЕЛЬСТВЕ (далее – заявление):
Прием заявлений от граждан и юридических лиц начинается «08» января 2026 в отделе жилищного строительства ГП «Гомельское областное УКС» по адресу: г. Гомель, ул. Билецкого, 7, ежедневно с 8:30 до 17:30 (обед с 13:00 до 14:00) в порядке живой очереди.
Для подачи заявления и заключения договора необходимо личное присутствие гражданина с наличием документа удостоверяющего личность (паспорт, идентификационная карта, вид на жительство в Республике Беларусь) или его представителя с наличием доверенности и документа удостоверяющего личность. Граждане, состоящие на учёте нуждающихся в улучшении жилищных условий в г. Гомеле при подаче заявления на участие в долевом строительстве предоставляют справку о состоянии на учете нуждающихся в улучшении жилищных условий в г. Гомеле (выданную не позднее 30 календарных дней (включительно) на момент её предоставления в УКС, со сверкой учетных данных).
Порядок приёма заявлений на жилые помещения - принимается одно заявление от физического или юридического лица или индивидуального предпринимателя на одно жилое помещение, в т.ч. в случае подачи заявления по доверенности от имени другого заявителя.
Приём заявлений на долевое строительство осуществляется до момента набора необходимого количества заявлений, соответствующих количеству продекларированных жилых помещений.
Предварительная запись и бронирование квартир не осуществляется, электронные заявления не регистрируются.
Заявления подлежат регистрации в порядке очередности их подачи.
Застройщик не формирует очередь, не ведёт учет и не влияет на формирование очереди потенциальных дольщиков.
Заявление считается аннулированным в случае не явки лица, подавшего заявление на участие в долевом строительстве, для подписания договора в течение 3-х рабочих дней с момента получения сообщения о готовности договора (информация о готовности договора направляется посредством СМС – оповещения по номеру, указанному в заявлении, либо посредством телефонной связи).
Приём заявлений на квартиры, освободившиеся в ходе строительства, осуществляется по живой очереди только после того, как соответствующая информация будет размещена на сайте ГП «Гомельское областное УКС» obluksgomel.by.
Заключение договоров с дольщиками осуществляется в соответствии с Указом Президента Республики Беларусь от 10.12.2018 №473 «О долевом строительстве».
Не допускается переуступка прав и обязанностей, вытекающих из сути договора создания объекта долевого строительства по объекту «Проект застройки 2-ой очереди микрорайона № 16 в г. Гомеле. Возведение многоквартирного жилого дома № 96 по генплану» третьим лицам кроме: детям, родителям, супругу (супруге), родным братьям и сёстрам.
Более подробную информацию по вышеуказанному объекту можно получить по телефонам 29 52 50, + 29 169 06 31, +375 44 721 21 00 в рабочее время.













